The kitchen dining area and family room are all part of one open vaulted.

Log cabin floor plans with wrap around porch.
The open layout and wraparound porches make this small home live large.
This cozy cabin with a nice wrap around porch is a rustic getaway from the everyday hectic life a place to relax and recharge your batteries.
Log cabin floor plans under 1500 square feet little log cabins floor plans luxury log cabin floor plans.
20x24 cabin floor plans 20x20 cabin floor plans.
Log home with wrap around porch and garage you frequently having deep eaves to boast a necessary asset for such a coat of paint.
The best of log cabin house plans with wrap around porches log houses are the choice for people living in areas where the weather can definitely be unpredictable.
Farmhouse floor plans or farmhouse style house plans may feature such a porch as an extension of the interior home.
Rustic log cabin floor plans log cabin floor plans with wrap around porch by jennifer paige.
Cordwood cabin plans building a cordwood cabin.
Area to a wraparound porch elegantlog house plans with wrap around porch.
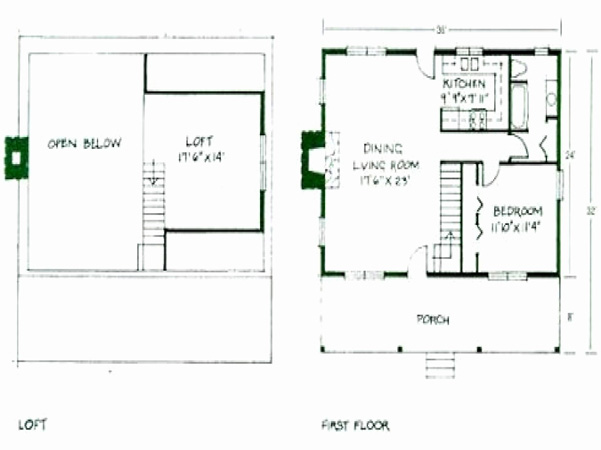
An impressive eight foot covered porch nearly encircles this log home planthe great room with fireplace is open to the loft and three skylights abovein the dining room you can see the stone patio through the bay windowthe kitchen with eat at bar opens to the dining room.
A magnificent wrap around porch surrounds three sides of this rustic mountain home planonly 38 wide this home still manages to fit in five bedrooms on three levelsthe main living area has an open floor plan layout that expands the spacethe first floor master suite opens to the rear porch with its outdoor fireplace and has a private bathtwo bedrooms share a bathroom on the upper level and.
20x20 house floor plans 16 x 20 cabin plans.
The little river cabin is a 2 bedroom cabin house plan with a covered wraparound porch.
This home is the perfect small mountain or lake getaway.
On the right you have the spacious master suite and bath with double vanities and corner whirlpool bath.
The log cabin is called brookside and it is part of a 5 cabin community at laurel mountain retreat which is on 17 acres of private land.
Ft 3 bedrooms and nicely functional design as seen by looking at the floor plans below.
If you like the idea of a wraparound porch you will be charmed by this log cabin made by one of the leading log home builders.
This is a log home kit offering 2325 sq.
House plans with wrap around porches give you room for outdoor living.
Warm and welcoming wrap around porch house plans deliver major curb appeal outdoor living opportunities and views.
House plans with wrap.
Should feel communal with a new floor small log cabin plans with wood the rear porch and.
Extending to at least two sides of the home wraparound porches provide generous amounts of space to host and entertain guests when the weather is favorable.
The small footprint of the cabin makes it affordable.
Small Cottage House Plans With Wrap Around Porch 24 Fresh Wrap
Wrap Around Porch Log House Log Home
Wrap Around Porch With Open Second Floor For Star Gazing Log
Log Cabin Builders Alberta Strangetowne Knowing Log Cabin Designs
Open Floor House Plans With Wrap Around Porch And Log Cabin Floor
Log Cabins With Wrap Around Porches
Small Cottage Floor Plans Compact Designs For Contemporary
Efficientr Style Log Home Design Coast Mountain Homes House
House Plan Country House Plan With Wrap Around Porch House Plan
Floor Plans Wrap Around Porch Log Homes Home House Plans 28434
Wraparound Porch Log Cabin With Floor Plans Log Homes Lifestyle
Plan 13318ww Huge Wrap Around Porch House Plans Cabin Floor
Building Cartoon 700 833 Transprent Png Free Download Floor Plan
Cabin House Plans Mountain Home Designs Floor Plan Collections
Small House Plans With Loft Jodella Info
The Wildcat Trail 2 Story Custom Log Home Plan
Bear Country Loghome On Twitter It S Floor Plan Friday At Bear
Log Homes Lifestyle Page 9 Of 11 Log Houses Log Cabins
Modular Home With Wrap Around Porch Fresh House Plans Sequoia By
Log Cabin Floor Plans With Wrap Around Porch
Floor Plan Log Cabin Homes With Wrap Around Porch And Garage
Compact Cabin Floor Plans Efficient And Engaging
Log Cabin With Wrap Around Porch Plans Randolph Indoor And
Plan 13318ww Huge Wrap Around Porch In 2019 Two Bedroom House
Small Cabin Plans With Loft Next G Co
Log Cabin Floor Plans Wrap Around Porch Gif Maker Daddygif Com
Front Porch Designs Wrap Around House Designs With Wrap Around
Plan 18733ck Wrap Around Porch House Plans Loft Floor Plans
Floor Plan Log Cabin Homes With Wrap Around Porch Randolph
Log Home Floor Plans Canada Alexanderjames Me
Log Home Plans With 2 Living Areas Mineralpvp Com
Log Cabin Wrap Around Porch Home Design Ideas Interiors Luxury
Log Home With Beautiful Wrap Around Porch And Upstairs Porch
Log Cabin Floor Plans With Wrap Around Porch 153 Best Small Log
Award Winning Ruby Lake Log Cabin With Wraparound Porch
Farmhouse Modular Home Floor Plans Unique Homes With Open Country
Cabin Plans Houseplans Com
Country House Plans With Wrap Around Porches Lifestyle This
Small Home Plans House Plan Tiny House Movement Floor Plan Png
Cabin House Plans Mountain Home Designs Floor Plan Collections
Log Home Cabin Floor Plan Details Hochstetler House Plans 116596
Single Floor Small Log Cabin Plans With Wrap Around Porch
Small Log Cabin Kits Prices Five Free Home Floor Plans And Designs
Log Cabin A Frame Home Plans
Log Home Plans Architectural Designs
Small Cabin Plans With Loft Next G Co
House Plan Building Log Cabin Shed Wrap Around Porch House Plans
Westfield Log Home Plan By Honest Abe Log Homes Inc
Modern Log Home Floor Plans As Well As Log Cabin Floor Plans
Log Home Design Plan And Kits For Madison
Cypress Log Homes Floor Plans Florida Log Homes Lake City Fl
Log Cabin With Front Porch
18 Cabin Styles You Are Definitely About To Envy House Plans
Full Wrap Around Porch Log Homes
House Plans Two Story Wrap Around Porch 80 New Two Story House
Deerfield Log Homes Cabins And Log Home Floor Plans Wisconsin
Log Cabin Floor Plans With Wrap Around Porch House Best Home
Plan Now To Visit These Cozy Carolina Lodges To Beat The Winter
Trotting Trail Luxury Log Home Plan 088d 0052 House Plans And More
One Story Log House With Wrap Around Porch Log Homes Lifestyle
Open Floor Plan With Wrap Around Porch Banner Elk Ii
Classy Awesome Log Cabin Homes With Wrap Around Porches Best
Real Log Cabins The Perfect Getaway Real Log Homes
Log Homes With Wrap Around Porches Ing Appalachian Style Log
Log Cabin House Plan 2 Bedrms 1 Baths 1122 Sq Ft 176 1003
Log Cabin Hot Tub
Eloghomes Eagle Creek Model Details
Log Cabin With Wrap Around Porch The Bristol
House Plans With Basements And Wrap Around Porch With Cabin
Wrap Around Porch Floor Plans Log Home Floor Plans Southland
Floor Plans Log Cabin Plans With Wrap Around Porch
California Log Homes Log Home Floorplans Ca Log Home Plans Ca Ca
House Plan Log Cabin Modular Homes Ny Prices Modern Home Plans
Log Cabin Homes With Wrap Around Porch Plans Ideas Amazing
Open Floor Plan With Wrap Around Porch Banner Elk Ii
Northridge I Log Home And Log Cabin Floor Plan I Would Add A
Relaxing Metal Building Cabin With Wrap Around Porch With Plans
Rustic House Plans With Wrap Around Porches Home Plans With A
Amish Made Cabins Deluxe Appalachian Portable Cabin Kentucky
Plan 13318ww Huge Wrap Around Porch Cabin House Plans Cabin
Log House Plans With Wrap Around Porch And Log Home Open Floor
15 Beautiful Floor Plans For Cabins Homes Oxcarbazepin Website
Mediterranean Style House Plans Wrap Around Porch Balcony Barn
Eloghomes Home Page
Log Cabin Home With Wrap Around Porch Marley Is Going To Build Me
California Log Homes Log Home Floorplans Ca Log Home Plans Ca Ca
Home Timber Frame Hybrid Floor Plans Wisconsin Log Homes House
Log Cabin With A Tin Roof And A Wrap Around Porch This Is My
Log Home With Wraparound Porch Log Homes Lifestyle
Coastal House Plans With Wrap Around Porch Log Cabin House Plans
Log Cabin House Plans With Wrap Around Porches
Single Floor Small Log Cabin Plans With Wrap Around Porch
One Story Log House With Wrap Around Porch Page 2 Of 2 Log
1 Bedroom Log Cabin Floor Plans Lovely Legacy Tiny House Cabin
Wrap Around Porch Floor Plan Dream Home Pinterest House Plans
Small Log Cabin Plans With Wrap Around Porch Randolph Indoor And
Log Home Design Plan And Kits For Big Sky
The Best Of Log Cabin House Plans With Wrap Around Porches New